Baxi Nuvola Platinum+ 33 GA котел газовый
Расскажите друзьям в социальной сети про этот товар, сообщите нам адрес своего !
- Доставка по Украине в любой населенный пункт службами "Новая Почта", "Укрпочта", "Міст Експрес" и др.
- Доставка по Львову – курьером
- Наличная при доставке курьером
- Наложенным платежом при получении заказа
- Безналичная для физических лиц через Банк
Описание Baxi Nuvola Platinum+ 33 GA котел газовый
Baxi Nuvola Platinum+ 33 GA котел газовый
Настенные газовые конденсационные котлы с выносной панелью и встроенным бойлером. Котлы серии Nuvola Platinum+ были разработаны на основе последней разработки BAXI - технологии «Think!», новейшей интеллектуальной системе, которая позволяет котлу «думать»! Современная система, встроенная в котлы BAXI, позволяет управлять всеми основными технологиями отопления, создавая, таким образом, энергоэффективные интегрированные комплексы. Возможно дистанционное управление котлом благодаря наличию съемной цифровой панели управления. Съемная цифровая панель является также датчиком комнатной температуры. Встроенный бойлер позволяет получить большое количество горячей воды.
Газовая система
- Съемная панель управления с большим дисплеем, ручкой регулирования, кнопками выбора меню и подсветкой; поставляется в комплекте с котлом
- Широкий диапазон модуляции, до 1÷10: максимальная эффективность благодаря уменьшению количества пусков/ остановок котла
- Газовая адаптивная система управления (GAC): автоматическое управление процессом горения для поддержания максимальной эффективности
- Циркуляционный насос с полной модуляцией
- Высокая производительность ГВС: до 500 л за 30 минут (ΔT 30°C) (модель 33 кВт)
- Встраиваемый расширительный бак ГВС
- Расширенная диагностика работы котла через панель управления
Гидравлическая система
- Трехходовой клапан с электроприводом
- Горелка с предварительным смешиванием из нержавеющей стали AISI 316L
- Первичный теплообменник из нержавеющей стали AISI 316L
- Встроенный бойлер ГВС из нержавеющей стали AISI 316L
- Модулирующий вентилятор с электронной системой регулировки скорости
- Автоматический байпас
- Циркуляционный насос с пониженным энергопотреблением, полной модуляцией и встроенным воздухоотводчиком
- Система защиты от блокировки насоса и трехходового клапана включается каждые 24 часа
- Предохранительный клапан в контуре отопления (3 бар), предохранительный клапан в контуре ГВС (8 бар)
- Расширительный бак ГВС объемом 2 л (опция)
- Возможность рециркуляции ГВС
Температурный контроль
- Встроенный климатический регулятор (возможность подключения датчика наружной температуры)
- Датчик комнатной температуры, таймеры отопления и ГВС встроены в панель управления.
- Возможность управления разнотемпературными системами
Устройства контроля и безопасности
- Термостат перегрева в первичном теплообменнике
- Гидравлический прессостат для предотвращения работы котла при малом количестве воды
- Датчик тяги - термостат (NTC) для безопасного удаления продуктов сгорания
- Электронная регулировка температуры с помощью датчиков NTC
- Функция “антилегионелла”
- Система защиты от замерзания в контурах отопления и ГВС
- Электронный датчик температуры
- Цифровой манометр контура отопления
Технические характеристики

Функциональная схема

Габаритные размеры

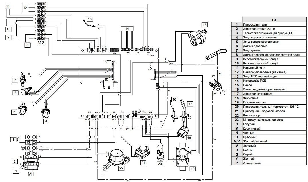
Схема электрических соединений

Характеристики Baxi Nuvola Platinum+ 33 GA котел газовый
Тип камеры сгорания | Конденсационный |
|---|---|
Вариант монтажа | настенный |
Назначения | двухконтурный |
Габаритные размеры, мм | 950 х 600 х 466 |
Ø подающей линии контура отопления (дюйм) | 3/4 |
Ø выхода горячей воды (дюйм) | 1/2 |
Ø входа газа (дюйм) | 3/4 |
Ø входа холодной воды (дюйм) | 1/2 |
Ø обратной линии контура отопления (дюйм) | 3/4 |
Ø отвода продуктов сгорания и подачи воздуха (мм) | 60/100, 80/80 |
КПД при 100% тепловой мощности (60/80°) % | 97.7 |
Страна бренда | Италия |
Расход газа: пропан (м3/час) | 2.64 |
Расход газа: природный газ (м3/час) | 3.60 |
КПД при 30% тепловой мощности - 47° C % | 107.6 |
Макс./мин. температура отопления °C | 25 - 80 |
Макс./мин. температура ГВС °C | 35 - 60 |
Макс./мин. номин. тепловая мощность (отoпление) | 3.4 - 24.7 |
Макс./мин. номин. тепловая мощность (режим ГВС) | 3.4 - 34 |
Производительность ГВС (ΔT=25°C) л/мин | 18.9 |
Производительность ГВС (ΔT=35°C) л/мин | 13.5 |
Температура продуктов сгорания (G20) ° | 80 |
Давление подсоединения газа G20(мБар) | 13.0 … 20.0 |
Потребляемая электрическая мощность Вт | 105 |
Напряжение, В/Гц | 230 В, 50 Гц |
Класс защиты | IP X5D |
NOx класс | 5 |
Вес, кг | 67.5 |
Тип камеры сгорания | Конденсационный |
|---|---|
Вариант монтажа | настенный |
Назначения | двухконтурный |
Габаритные размеры, мм | 950 х 600 х 466 |
Ø подающей линии контура отопления (дюйм) | 3/4 |
Ø выхода горячей воды (дюйм) | 1/2 |
Ø входа газа (дюйм) | 3/4 |
Ø входа холодной воды (дюйм) | 1/2 |
Ø обратной линии контура отопления (дюйм) | 3/4 |
Ø отвода продуктов сгорания и подачи воздуха (мм) | 60/100, 80/80 |
КПД при 100% тепловой мощности (60/80°) % | 97.7 |
Страна бренда | Италия |
Расход газа: пропан (м3/час) | 2.64 |
Расход газа: природный газ (м3/час) | 3.60 |
КПД при 30% тепловой мощности - 47° C % | 107.6 |
Макс./мин. температура отопления °C | 25 - 80 |
Макс./мин. температура ГВС °C | 35 - 60 |
Макс./мин. номин. тепловая мощность (отoпление) | 3.4 - 24.7 |
Макс./мин. номин. тепловая мощность (режим ГВС) | 3.4 - 34 |
Производительность ГВС (ΔT=25°C) л/мин | 18.9 |
Производительность ГВС (ΔT=35°C) л/мин | 13.5 |
Температура продуктов сгорания (G20) ° | 80 |
Давление подсоединения газа G20(мБар) | 13.0 … 20.0 |
Потребляемая электрическая мощность Вт | 105 |
Напряжение, В/Гц | 230 В, 50 Гц |
Класс защиты | IP X5D |
NOx класс | 5 |
Вес, кг | 67.5 |
Отзывы о товаре Baxi Nuvola Platinum+ 33 GA котел газовый
-
90586 грн
-
89148 грн
-
0.00 грн
-
0.00 грн
-
21562 грн
-
34592 грн
-
34160 грн
-
24188 грн
-
32558 грн
-
31488 грн
-
0.00 грн
-
0.00 грн
-
0.00 грн
-
0.00 грн
-
0.00 грн
-
0.00 грн
-
27593 грн
-
30608 грн
-
33721 грн
-
0.00 грн
-
0.00 грн
-
30284 грн
-
0.00 грн
-
0.00 грн
-
0.00 грн
-
51109 грн
-
50618 грн
-
55380 грн
-
59040 грн
-
44680 грн
-
61200 грн
-
47858 грн
-
50517 грн
-
31708 грн
-
51541 грн

